海博熙泰|浮世流光影,人间烟火气

  • 案例风格:
  • 新中式
  • 案例面积:
  • 292
  • 楼盘名称:
  • 海博熙泰
  • 所在城市:
  • 潮州市
图片图片图片图片流光千年印古意,四壁浮影悟中采,袅袅熏香絮絮绕,诗词意境自然来。

「设计说明」

Design Description

新中式装修设计,结合流光千年的古意与现代风格简约质感,酝酿出独特的美学艺术,本案设计深度洞察业主梦想的生活方式,以删繁就简的手法营造宁静致远,让空间弥散古朴端庄的细腻与穿越岁月的优雅。


图片

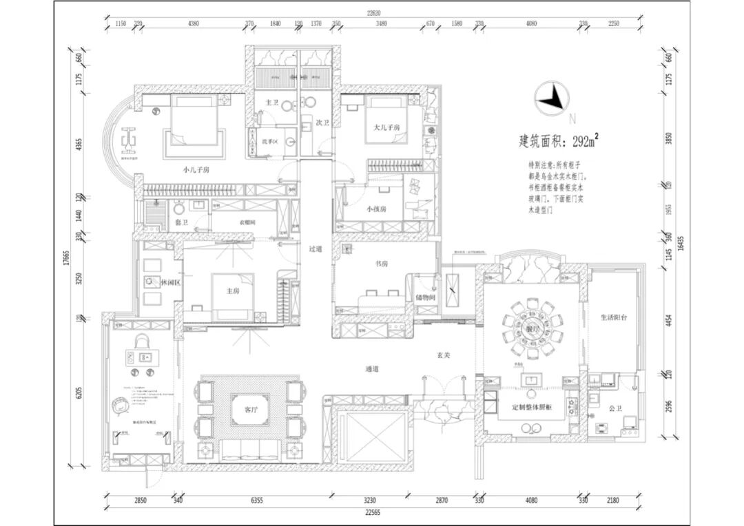
平面布置图

图片

图片


「项目信息」

Project information


❅案例地址:海博熙泰

❅建筑面积:292㎡

❅风格:新中式

❅主要材料:岩板,护墙板,中式木格,乌金木柜

❅设计机构:潮州星艺装饰工程有限公司

❅施工机构:潮州星艺装饰工程有限公司


入户Porch

图片


图片

以绝美诗意的空间表达方式,打造一个家的浪漫情怀,在空间设计中去掉了传统的、刻板的,中式形象的标签,用一种全新的设计方式,构成了东方的美和神韵。The romantic feelings of a home are created by using the extremely beautiful poetic space expression. The traditional, rigid and Chinese image labels are removed from the space design, and a new design method is used to form the beauty and charm of the East.


客厅Living room

图片

时光深处,岁月静好

图片

踏入空间,沙发背景浅绿色岩板拼纹山水画,两边中式木格内嵌牛皮纸再内存灯管,细细品味一切都是生于意外又蕴于象内,更加耐人寻味,一抹素雅的色彩几笔简练的线条用最简洁的方式勾勒出了无限的想象,将中式的意境之美表达得更加纯粹。Stepping into the space, the light green rock panel mosaic landscape painting on the sofa background, kraft paper embedded in the Chinese style wooden lattice on both sides, and then the light tubes are stored. Savoring everything carefully, it is both accidental and implied in the image, which is more intriguing. A touch of elegant colors and a few simple lines outline infinite imagination in the most concise way, and express the beauty of Chinese artistic conception more purely.


图片图片觅得浮生半日闲打造东方意境下的意境美学,淡雅舒适,气韵天然。

图片

电视背景墙选择岩板装饰,在左右侧以中式木格内嵌牛皮纸再内存灯管与沙发背景相互呼应,客厅疏密结合,层次细腻分明,中式艺术形态包容万象,细腻流畅的旋律感沁人心脾。The TV background wall is decorated with rock plates. Kraft paper is embedded in the Chinese wooden lattice on the left and right sides, and then the light tubes are stored in the sofa background to echo each other. The living room is densely combined, with delicate and clear layers. The Chinese art form is inclusive, and the delicate and smooth melody is refreshing.


过道Aisle

图片

新中式设计追求线条简洁,也不会使用大量的繁复工艺,线条流畅明朗且清新自然,满足现代居住者的居家概念,也传承着中式千年的风骨,更重要的是打开了更多居家设计的更多想象力,让新中式变得愈加的温婉舒适。The new Chinese style design pursues simple lines and will not use a large number of complex processes. The lines are smooth, bright, fresh and natural, which meet the home concept of modern residents. It also inherits the spirit of Chinese style for thousands of years. More importantly, it opens more imagination of home design and makes the new Chinese style more gentle and comfortable.


通道Passageway

暗香疏影

图片
图片

图片

通道采用乌金木柜门边框造型设计,摆件与艺术挂画是东方的代表,透露出些许禅意,在空间中和谐相融,自然光线所投射的暖,传达了该有的宁静和家的味道。The passage adopts the shape design of the frame of the ebony cabinet door. The decorations and art hanging paintings are the representatives of the East, revealing a little Zen, harmonizing in the space, and the warmth reflected by natural light conveys the taste of tranquility and home.


餐厅

Dining room图片

素年锦时

图片

花语禅心

图片

留香岁月

图片


图片

餐厅的设计古朴而典雅,承载着东方文化的尊崇和礼序,无论是整体色温或摆件,都将欢闹、亲密、放松的区域特定氛围烘托出来,空间简约而不简单,富有创意的吊灯,与餐桌上的花器相互成趣。The design of the restaurant is simple and elegant, bearing the respect and ritual order of Oriental culture. Whether it is the overall color temperature or decorations, it will set off the specific atmosphere of hilarious, intimate and relaxed areas. The space is simple but not simple, and the creative chandelier is mutually interesting with the flower utensils on the table.



最后的话


家是一切有形的存在,与细节融合成一个场域,与情感产生共鸣。从而引发一种思考:真实的我们是什么样子?我们在家这个私属空间中,不再需要伪装,无所谓表情,自在而来,随意而去,让空间成为庇护,始终守护着我们所珍视的一切。



图片

图文编辑 I 陈莉莉

Graphic editing I Lily Chen

COPYRIGHT © 2019 潮州市星艺装饰工程有限公司 ALL RIGHTS RESERVED 技术支持:微派网络科技

预约设计

上门量房